

面板安装
阿姆斯壮 Armstrong PCB 系列压力表包含三种型号:PCB(干底壳普通型)、PCS(干底壳蒸汽型)和 PSS(充液底壳蒸汽型)。三者共享 Φ100 表盘、1.5 级精度、IP55 防护等级及相同外形尺寸,均配环形管和针阀。PCB 适用于一般工业环境,PCS/PSS 采用不锈钢机芯和波登管,耐高温达 300°C;PSS 额外采用充甘油设计,有效抑制指针抖动,适合高振动环境。

阿姆斯壮 Armstrong PCB 系列压力表包含三种型号,适用于不同工业应用场景:
三型产品均配备环形管和针阀,表盘外径 Φ100,精度等级 1.5 级,防护等级 IP55,外形尺寸完全一致。可广泛应用于石油、化工、冶金、钢铁、食品等行业的液体或气体介质压力测量。
配套附件
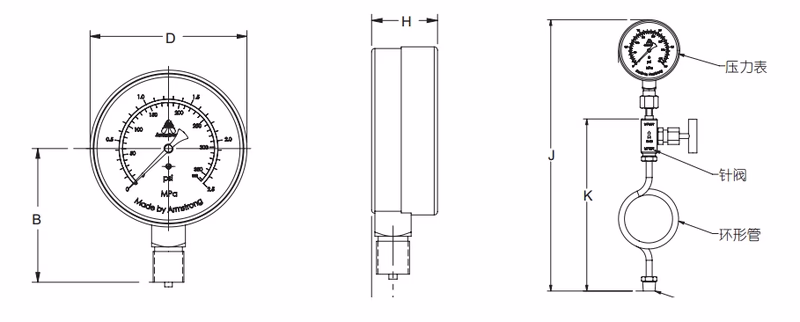
三型压力表出厂时均已配套环形管和针阀。应用于蒸汽或其它热气体时,必须使用环形管和针阀以确保测量准确及设备安全。
| 参数项 | 干底壳普通型(PCB) | 干底壳蒸汽型(PCS) | 充液底壳蒸汽型(PSS) |
|---|---|---|---|
| 精度等级 | 1.5级 | 1.5级 | 1.5级 |
| 测量范围 | 0~1.0 / 0~1.6 / 0~2.5 / 0~4.0MPa;可扩展至 0~0.1MPa 等低量程 | 同左 | 同左 |
| 工作压力 | 静负荷用至测量上限值的 3/4,交变负荷用至测量上限的 2/3,短时压力用至测量上限值 | 同左 | 同左 |
| 正常工作环境温度 | -40°C ~ 70°C | -40°C ~ 300°C | -5°C ~ 300°C |
| 防护等级 | IP55 | IP55 | IP55 |
| 表盘外径 | Φ100 | Φ100 | Φ100 |
| 连接口径 | 1/2 BSPT | 1/2 BSPT | 1/2 BSPT |
| 接头螺纹 | M20×1.5(黄铜) | M20×1.5(304不锈钢) | M20×1.5(304不锈钢) |
| 类型 | 型号 | 量程范围 |
|---|---|---|
| 干底壳普通型 | PCB-1.0 / PCB-1.6 / PCB-2.5 / PCB-4.0 | 0~1.0 / 0~1.6 / 0~2.5 / 0~4.0MPa |
| 干底壳蒸汽型 | PCS-1.0 / PCS-1.6 / PCS-2.5 / PCS-4.0 | 同上 |
| 充液底壳蒸汽型 | PSS-1.0L / PSS-1.6L / PSS-2.5L / PSS-4.0L | 同上 |
低量程扩展型号
除以上标准量程外,三型产品均可选更低量程规格(0~0.1 / 0~0.16 / 0~0.25 / 0~0.4 / 0~0.6MPa)。请参考安装维护手册中的完整型号表进行订购。
| 部件名称 | 干底壳普通型(PCB) | 干底壳蒸汽型(PCS) | 充液底壳蒸汽型(PSS) |
|---|---|---|---|
| 仪表外壳 | 碳钢喷黑塑内卡式罩壳 | 碳钢喷黑塑内卡式罩壳 | 不锈钢本色内卡式罩壳 |
| 仪表机芯 | 铜 | 不锈钢 | 不锈钢 |
| 仪表玻璃 | 仪表平板玻璃 | 仪表平板玻璃 | 仪表平板玻璃 |
| 波登管 | 磷青铜锡焊 | 不锈钢氩弧焊 | 不锈钢氩弧焊 |
| 接头 | 黄铜 M20×1.5 | 304不锈钢 M20×1.5 | 304不锈钢 M20×1.5 |
| 充液 | 无(干底壳) | 无(干底壳) | 甘油 |
| 环形管 | 304不锈钢 | 304不锈钢 | 304不锈钢 |
| 针阀 | 304不锈钢 | 304不锈钢 | 304不锈钢 |
三型差异要点

| 规格 | D | A | B | H | J | K |
|---|---|---|---|---|---|---|
| PCB / PCS / PSS系列 | 102 | 13 | 87 | 40 | 451 | 286 |
三型产品外形尺寸完全一致,可互换安装。
如同所有的测试设备,阿姆斯壮压力表是一个精密测量仪器,所以安装和使用时要格外小心,以确保其可靠性。应用于蒸汽和其它热气体中,压力表必须使用环形管和针阀。

安装要点:
订货时需明确告知以下信息: