

斯派莎克 Spirax Sarco M70i ISO 是采用锻造 316L 不锈钢三段式阀体的卫生级球阀,适用于洁净公用系统和工艺辅助系统,例如洁净蒸汽。产品标配 ISO 5211 安装平台,提供卫生卡箍、延长对焊端及组合连接,并可选电抛光或腔体填充版本。

M70i 是采用锻造 316L 不锈钢三段式阀体的卫生级球阀,标准配置 ISO 安装平台。该产品总体按 ASME BPE 要求设计制造,适用于液体、公用气体以及洁净蒸汽等工艺辅助系统。
M70i 应作为切断阀使用,不应用作调节阀。
标准内表面粗糙度为 0.5 微米 Ra,20 微英寸,符合 ASME BPE SF1。特殊订货可提供 0.375 微米 Ra,15 微英寸的电抛光表面,符合 ASME BPE SF4。外表面为锻造 / 机械加工自然表面。
| 可供型号 | 阀座 / 表面说明 |
|---|---|
| M70iV ISO | 纯 PTFE TFM 1600 |
| M70iVEP ISO | 纯 PTFE TFM 1600,电抛光至 0.375 微米 Ra |
| M70iG ISO | 矿物填充 PTFE |
| M70iGEP ISO | 矿物填充 PTFE,电抛光至 0.375 微米 Ra |
| M70iV CF ISO | 纯 PTFE TFM 1600,带腔体填料 |
| M70iVEP CF ISO | 纯 PTFE TFM 1600,电抛光至 0.375 微米 Ra,带腔体填料 |
| M70iG CF ISO | 矿物填充 PTFE,带腔体填料 |
| M70iGEP CF ISO | 矿物填充 PTFE,电抛光至 0.375 微米 Ra,带腔体填料 |
本产品符合压力设备指令相关要求。
可提供的证书包括:
密封材料符合:
每只阀门两端均加盖并用塑料袋密封,防止灰尘及其他污染物进入。
标准口径范围:
可选连接方式:
其他连接方式可按要求提供。更大口径 2 1/2 in、3 in 和 4 in 的卫生级球阀可参考 M80i 系列。
蒸汽工况说明:不推荐使用腔体填料。

图示禁用区内不得使用本产品。
对于卡箍连接阀门,最大工作条件还可能受卡箍本身限制。
| 项目 | 数值 |
|---|---|
| 阀体设计条件 | PN63 |
| PMA 最大允许压力 | 62 bar g @ 20 degC |
| TMA 最大允许温度 | 200 degC @ 0 bar g |
| 最低允许温度 | -29 degC |
| PMO 饱和蒸汽最大工作压力,纯 PTFE | 7.0 bar g |
| PMO 饱和蒸汽最大工作压力,矿物填充 PTFE | 8.5 bar g |
| TMO 最大工作温度 | 200 degC @ 0 bar g |
| 最低工作温度 | -29 degC |
| PMX 最大压差 | 由 PMO 限定 |
| 冷态水压试验压力 | 93 bar g |

| 序号 | 部件 | 材质 | 规格 |
|---|---|---|---|
| 1 | 阀体 | 不锈钢 | ASTM A182 F316L |
| 2 | 连接端 | 不锈钢 | ASTM A182 F316L |
| 11 | 铭牌,图中未示 | 不锈钢 | AISI 430 |
| 12 | 手柄 | 不锈钢 | AISI 316 |
| 13 | 手柄套 | 乙烯基 | - |
| 14 | 螺柱和螺母 | 不锈钢 | AISI 316 |

| 序号 | 部件 | 材质 | 规格 |
|---|---|---|---|
| 3 | 球体 | 不锈钢 | AISI 316L |
| 4 | 阀杆 | 不锈钢 | AISI 316L |
| 5 | M70iG 阀座 | 矿物填充 PTFE | - |
| 5 | M70iV 阀座 | 纯 PTFE TFM 1600 | - |
| 6 | 阀杆密封 | 纯 PTFE TFM 1600 | - |
| 7 | 垫片 | 不锈钢 | AISI 316 |
| 8 | 压紧螺母 | 不锈钢 | AISI 316 |
| 9 | 锁紧垫圈 | 不锈钢 | AISI 316 |
| 10 | 阀杆螺母 | 不锈钢 | AISI 316 |
| 15 | 腔体填料,可选 | 纯 PTFE TFM 1600 | - |
| 16 | 阀盖垫片 | 纯 PTFE TFM 1600 | - |
| 17 | 碟形弹簧垫圈 | 不锈钢 | AISI 316 |
| 18 | 阀杆密封 | 不锈钢 | INOX |
| 项目 | 数值 |
|---|---|
| 泄漏等级 | ISO 5208 Rate A / EN 12266-1 Rate A |
| 阀杆密封和阀座材料 | 符合 FDA CFR Title 21 Part 177 Section 1550 |
| 阀杆密封和阀座材料 | 符合 USP23 Class VI |
| 流动特性 | 修正线性 |
| 流通口 | 全通径 |
| 口径 | 1/2 in | 3/4 in | 1 in | 1 1/2 in | 2 in |
|---|---|---|---|---|---|
| Kv | 7 | 25 | 56 | 164 | 360 |
换算关系:
| 口径 | 1/2 in | 3/4 in | 1 in | 1 1/2 in | 2 in |
|---|---|---|---|---|---|
| Nm | 13 | 15 | 19 | 70 | 100 |
以上扭矩适用于在最大工作压力下频繁操作的阀门。长期静止的阀门,其启闭所需起动扭矩可能更高。

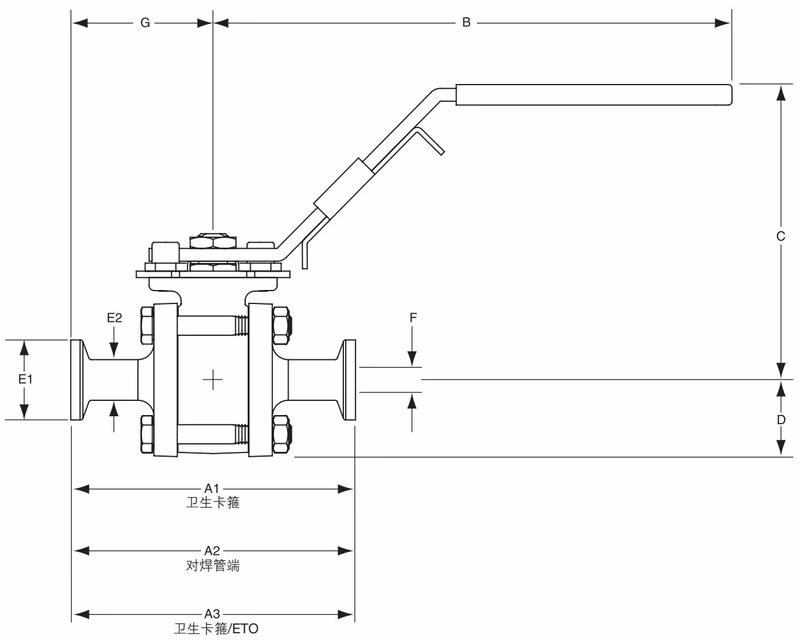
| 口径 | A1 mm | A2 mm | A3 mm | B mm | C mm | D mm | E1 mm | E2 mm | F mm | G 卡箍 mm | G ETO mm | 重量 kg |
|---|---|---|---|---|---|---|---|---|---|---|---|---|
| 1/2 in | 89.0 | 140.0 | 114.5 | 161 | 92 | 24 | 25.0 | 12.70 | 9.4 | 44.5 | 70.0 | 0.80 |
| 3/4 in | 101.6 | 152.4 | 127.0 | 161 | 94 | 26 | 25.0 | 19.05 | 15.8 | 50.8 | 76.2 | 1.00 |
| 1 in | 114.2 | 165.0 | 139.6 | 161 | 101 | 31 | 50.5 | 25.40 | 22.2 | 57.1 | 82.5 | 1.55 |
| 1 1/2 in | 139.6 | 190.4 | 165.0 | 185 | 126 | 48 | 50.5 | 38.10 | 34.8 | 69.8 | 95.2 | 4.50 |
| 2 in | 158.7 | 203.1 | 180.9 | 250 | 141 | 57 | 64.0 | 50.80 | 47.5 | 79.4 | 101.6 | 7.70 |
完整要求请参考随产品提供的安装维护说明。
只有设计为焊接连接的 ETO 型号才允许焊接。卡箍连接阀门不得焊接,以免损伤软密封件。
订货时应明确以下内容:
腔体填料不是标准配置,如需提供必须在订货时说明。
订货示例:
1 台 Spirax Sarco 1/2 in M70iV ISO 锻造卫生级球阀,卫生卡箍连接,ASME BPE,内表面粗糙度 0.5 微米 Ra,并提供 EN 10204 3.1 材质证书。
实线标注的部件可以作为备件提供,灰线标注的部件不作为备件供应。

| 备件名称 | 对应序号 |
|---|---|
| 阀座及密封组件 | 5, 6, 16, 18 |
| 带腔体填料的阀座及密封组件 | 5, 6, 15, 16, 18 |
订购备件时,应注明备件名称、阀门口径和阀门型号。